Publié: 9jour(s)
Crédit-bail
Disponible sur demandeGooseneck, detachable:
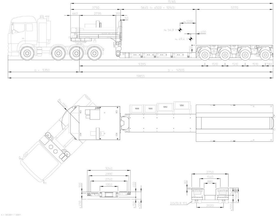
loading area 3,750 mm x 2,480 mm
technical fifth wheel load up to max. 30,000 kg (without using the front landing gear) (taking into account the load scheme)
hydromechanical steering with multi-chamber hydraulic cylinder
hydraulic lifting and lowering function
2 support cylinders
hydraulic differential circuit / lifting cylinder DZ 200 N 150 / position 4
Control elements of the hydraulic functions on the left in the direction of travel, including manometer with diagram for determining the fifth wheel load and manometer for monitoring the preload pressure in the steering system
Ladder to the gooseneck
hydraulic claw lock for bridge or chassis
Multifunctional quick coupling
Air pistol for cleaning the multifunction quick coupling
Lighting for the operating elements of the gooseneck under the protective cover
3.5 “king pin
4 pairs of threaded socket (s) M30
1 pair of lashing points LC 20,000 daN
2 pairs of lashing points LC 800 daN
2-axle chassis front:
4 wheels per axle line, pendulum axle units with slewing rings
Axle make: BPW
Chassis width 2,750 mm / wheelbase 1,510 mm
Single tires 245/70 R 17.5 (146/146 F)
Hydraulic axle compensation, stroke 600 mm
Ride height: 1,145 mm +340 mm / -260 mm
Additional lift option for all axles in the front chassis
Sheet metal flooring
Additional warning sign holder, mounted on the front chassis
3 pairs of threaded lashing preparations M36 on the loading area (16,000 daN)
1 pair of threaded lashing preparations M36 on the side (16,000 daN)
1 pair of lashing points LC 20,000 daN
Brakesystem 2-axle chassis, front:
Drum all-wheel air brake system with membrane brake cylinders
automatic load-dependent brake (ALB) (AGS)
Parking brake by means of spring-loaded cylinders
EBS / ABS (electronic brake system) make KNORR-BREMSE
Socket for EBS on the front of the gooseneck
Driving stability control RSP (Roll Stability Program)
Duomatic coupling for the brake connection between the chassis and the loading area
Low bed loading area 5.500 mm bis 10.000 mm:
Box-shaped inner / outer tube
Construction height of the outer tube 400 mm
Loading height 550 mm, ground clearance 150 mm
Coupling claws at the front, for connection to the front chassis or directly to the gooseneck
On the coupling claws at the front, fixed table 250 mm long x 1,350 mm wide
Suspension of the sliding tables every 250 mm
Locking of the pull-out steps by means of spring-loaded locking bolts
Extension steps of the bridge every 250 mm
Preparation of the outer tube for hanging in folding extensions
Integrated supply lines for hydraulics, brakes and electrics
integrated side lights, according to EU regulations without separation point to the rear chassis
5 pairs of threaded lashing preparations M36 on the loading area (16,000 daN)
4 lashing rings VLR 10 (LC 20,000 daN)
4 pairs of lashing points LC 10,000 daN
1 pair of lashing points LC 20,000 daN
4-axle chassis, rear:
4 wheels per axle line, pendle axle units
Chassis width 2,750 mm / wheelbase 1,510 mm
Single tires 245/70 R 17.5 (146/146 F)
Hydraulic axle compensation, stroke 600 mm
Driving height: 1,100 mm +385 mm / -215 mm
Floor covering sheet metal
Combined excavator bowl, (length x width) 5,770 mm x 880 mm / 1,538 mm, splash protection device with water absorber mats on all axles, aluminum bulkhead plate in the excavator bowl at the front and rear, can be plugged
2 pairs of lashing points LC 10,000 daN
2 pairs of threaded bushings M36 on the loading area (16,000 daN)
3 pairs of stake pockets 100x50 mm (LC 2,000 daN)
1 pair of threaded bushing (s) M36 in the excavator trough (16,000 daN)
4 pairs of elongated holes for lashing option LC 500 daN in the excavator trough
Brake system 4-axle chassis, rear:
Drum brake with automatic load-dependent brake (ALB) (AGS)
Two-line all-wheel air brake system with membrane brake cylinders
Parking brake by means of spring-loaded cylinders
EBS / ABS (electronic brake system) make KNORR-BREMSE
Driving stability control RSP (Roll Stability Program)
Rear:
Standard design 90 °, 580 mm overhang from the middle of the last axis
without ramp attachment to the end traverse
2x bracket for warning light
Electronic system:
7-chamber LED light (without load module)
Load module for lighting detection (LCG)
1 pair of work lights (LED version) permanently installed on the gooseneck with actuation by means of a switch on the tractor (PIN 10)
1 pair of reversing lights in the light bar at the rear (LED version), switched to reverse gear
1 pair of work lights on the side of the rear chassis (LED version) between axes 2 and 3, actuated by means of a switch on the tractor
1x 15-pin, on the front plate of the gooseneck for power supply, 24 V
2x 7-pin, in the area of the seat posts for warning signs
2x 7-pin, on the rear chassis at the front for warning signs
2x 7-pole, on the final cross member for warning signs
1x 7-pole, on the final cross member for steering
1x 7-pole, on the final cross member for lights, warning signs, etc. other consumers
2x 7-pin, between 2nd and 3rd axis (on the rear chassis) for warning signs
Hydraulic system:
Hydraulic connection for tractor unit (1 set), connections for tractor unit (without lines), pump in the tractor unit with a maximum flow rate of 60 l / min, additional flow divider for tractor unit flow rate up to 120 l / min.
6-way block valve in the gooseneck, for depressurizing the gooseneck linkage
Hydraulic unit with Hatz diesel engine 10 kW, noise-dampened, hydraulic pump output 12 l / min, including electric starter and manual throttle setting, on the side of the gooseneck, standard paint in DB7350 novagrey, weight approx. 460 kg
Additional steering system:
EasyControl "Comfort" follow-up steering, for manual steering of the trailer axles using radio remote control, lane function, electrical actuation of the 4-way block tap, automatic steering pressure adjustment, emergency actuation of the follow-up steering using two push buttons on the gooseneck
Guide bottle for easyCONTROL, for manual steering of the trailer axles using cable remote control, spiral cable expandable from 1.5 m to 5 m in length
Adapter cable for guide bottle, 16-pin to 7-pin, for operation on the gooseneck
Paintwork:
Pretreatment: Steel construction according to DIN 55928 and ISO standard 8501 SA 2.5 blasted with corundum, metallization according to DIN EN ISO 2063, (thermal spray galvanizing with 99.995% zinc)
Paint structure: first coating with EP / 2-K-PUR adhesive primer, second coating with EP / 2-K-PUR adhesive primer, third and fourth coating with 2-K-PUR topcoat, cavities with EP / 2-K- PUR primer and 2-component PUR top coat sealed, connecting parts with zinc flake / zinc-nickel coating, preservation with steam jet-resistant material
Colour:
Stanchions for drop sides: in RAL 9006 white aluminum
Storage box premium: powder-coated in RAL 9006 white aluminum
Single-color painting in DB7350 novagrey
Attachments: DB7350 novagrau
Rims: silver
Hub: black
Drop sides: aluminum-silver anodized
Anti-slip coating on all treads
Additional equipement:
Spare wheel holder on the loading area of the gooseneck with a mounted spare wheel
2 pairs of wheel chocks
Aluminum drop sides, closed on 3 sides (with rear wall) 400 mm high, stanchions (can be folded down and removed)
Goldhofer "Premium" storage box, front mounted on gooseneck, corners angled 45 °, dimensions approx. 550 x 400 x 2,540 mm, with side doors and rectangular lid that can be folded to the front, doors and lid lockable, 2 pluggable partitions inside.
2 pairs of warning signs, 423 x 423 mm, with 3 LED position lights, incl. Tube for rotating beacon, holder for warning signs extendable to max. 4,200 mm.
LED rotating beacon (2 pieces), pluggable, light switched via parking light
Central lubrication system, Beka-Max type "Progressive" for normal grease, with 3 pumps
2 pairs of lashing point (s) IVI36 screwable LC = 16,000 daN, loose
1 sign "Convoi Exceptionnel"
1 set of drive-on wedges in aluminum for driving onto the excavator bridge from the front, 2-part design, with climbing rails, length approx. 1,450 mm, width approx. 560 mm, weight: approx. 100 kg
Excavator bridge extensions with a basic length of 5,500 mm to form a low-bed bridge with 2 loading heights (as loose elements)
Consists of the following components:
2 pairs of steel mattresses each 1,000 mm x 600 with hardwood covering.
2 pairs of steel mattresses each 1,250 mm x 600 with hardwood covering.
Can be hooked in or locked for outside widths of approx. 2,740 mm, 2,990 mm and 3,240 mm
5 pairs of attachable or detachable extension elements for a loading height at the same height as the excavator bridge or 100 lower.
External width over the extension elements approx. 2,740 mm, total weight approx. 1,650 kg
Excavator bridge extensions in the telescopic length of 4,500 mm to form a low-bed bridge with 2 loading heights (as loose elements)
Consists of the following components:
1 extension table, length 250 mm, width 1,350 mm, can be attached to the inner tube
2 pairs of steel mattresses each 1,000 mm x 600 with hardwood covering
Can be hooked in or locked for outside widths of approx. 2,740 mm, 2,990 mm and 3,240 mm
2 pairs of attachable or detachable extension elements for a loading height at the same height as the excavator bridge or 100 mm lower.
External width over the extension elements approx. 2740 mm
Weight: approx. 920 kg
Cette offre est uniquement à titre informatif. Veuillez confirmer les détails directement auprès du vendeur.
Après avoir identifié un véhicule qui vous intéresse sur Truck1.eu, vous avez la possibilité de contacter le vendeur soit en utilisant le formulaire de contact, soit en appelant directement le revendeur en utilisant le numéro de téléphone fourni. Choisissez la méthode qui correspond le mieux à vos préférences.
Contactez le vendeur pour demander plus d'informations sur la disponibilité du véhicule, son état technique et son prix réel, car les annonces peuvent ne pas toujours fournir des détails complets. Demandez également les récents carnets d'entretien ou rapports d'inspection pour obtenir une image plus claire de l'état actuel du véhicule.
Profitez de la fonctionnalité de comparaison de Truck1 pour évaluer des véhicules similaires. Cela vous aidera à évaluer si le prix demandé est compétitif et en accord avec les tendances du marché. Recherchez des modèles en matière de tarification et de caractéristiques pour prendre une décision éclairée.
Lors de l'achat d'un véhicule en ligne, il est essentiel de vérifier la réputation du vendeur en cherchant des avis positifs et un historique de transactions réussies. Les icônes de “Statut du” de Truck1 fournissent des informations précieuses basées sur les expériences avec le revendeur, aidant à évaluer la fiabilité du vendeur.
Dès que possible, donnez la priorité à la visite du vendeur et à l'inspection du véhicule en personne. Si possible, organisez une inspection pré-achat du véhicule par un tiers. Cela peut révéler des problèmes potentiels qui pourraient ne pas être visibles sur les photos ou mentionnés dans l'annonce.
Assurez-vous de signer un contrat de vente détaillé pour protéger vos droits et confirmer les termes de la transaction.
Procédez au paiement uniquement après avoir signé le contrat de vente. Un petit acompte pour réserver le véhicule est courant mais doit être fait avec prudence.
Confirmez l'authenticité du vendeur en recueillant des informations détaillées et en vérifiant les avis ou les évaluations des acheteurs précédents. Recherchez les icônes de concessionnaires sur Truck1 pour identifier les vendeurs vérifiés et garantir une expérience d'achat plus sûre.
Comparez les prix des véhicules similaires en utilisant l'outil de comparaison pour identifier toute offre inhabituelle. Méfiez-vous des prix qui s'écartent significativement de la norme du marché, car ils peuvent indiquer des problèmes potentiels ou une fraude.
Demandez au vendeur des détails sur l'historique et les conditions d'utilisation du véhicule. Un vendeur authentique sera transparent et prêt à partager ces informations, vous aidant à évaluer si le véhicule répond à vos besoins.
Organisez une visite pour voir et tester le véhicule, en recherchant des signes d'usure ou de dommages. Envisagez une inspection avant l'achat par un mécanicien professionnel pour découvrir tout problème caché et assurer la sécurité et la fiabilité du véhicule.
Avant toute transaction, assurez-vous qu'un accord de vente détaillé est en place, décrivant tous les termes et conditions. Utilisez des méthodes de paiement sécurisées et vérifiez les détails de la transaction pour vous protéger contre la fraude.
Crédit-bail
Disponible sur demande
Cette offre est uniquement à titre informatif. Veuillez confirmer les détails directement auprès du vendeur.
Après avoir identifié un véhicule qui vous intéresse sur Truck1.eu, vous avez la possibilité de contacter le vendeur soit en utilisant le formulaire de contact, soit en appelant directement le revendeur en utilisant le numéro de téléphone fourni. Choisissez la méthode qui correspond le mieux à vos préférences.
Contactez le vendeur pour demander plus d'informations sur la disponibilité du véhicule, son état technique et son prix réel, car les annonces peuvent ne pas toujours fournir des détails complets. Demandez également les récents carnets d'entretien ou rapports d'inspection pour obtenir une image plus claire de l'état actuel du véhicule.
Profitez de la fonctionnalité de comparaison de Truck1 pour évaluer des véhicules similaires. Cela vous aidera à évaluer si le prix demandé est compétitif et en accord avec les tendances du marché. Recherchez des modèles en matière de tarification et de caractéristiques pour prendre une décision éclairée.
Lors de l'achat d'un véhicule en ligne, il est essentiel de vérifier la réputation du vendeur en cherchant des avis positifs et un historique de transactions réussies. Les icônes de “Statut du” de Truck1 fournissent des informations précieuses basées sur les expériences avec le revendeur, aidant à évaluer la fiabilité du vendeur.
Dès que possible, donnez la priorité à la visite du vendeur et à l'inspection du véhicule en personne. Si possible, organisez une inspection pré-achat du véhicule par un tiers. Cela peut révéler des problèmes potentiels qui pourraient ne pas être visibles sur les photos ou mentionnés dans l'annonce.
Assurez-vous de signer un contrat de vente détaillé pour protéger vos droits et confirmer les termes de la transaction.
Procédez au paiement uniquement après avoir signé le contrat de vente. Un petit acompte pour réserver le véhicule est courant mais doit être fait avec prudence.
Confirmez l'authenticité du vendeur en recueillant des informations détaillées et en vérifiant les avis ou les évaluations des acheteurs précédents. Recherchez les icônes de concessionnaires sur Truck1 pour identifier les vendeurs vérifiés et garantir une expérience d'achat plus sûre.
Comparez les prix des véhicules similaires en utilisant l'outil de comparaison pour identifier toute offre inhabituelle. Méfiez-vous des prix qui s'écartent significativement de la norme du marché, car ils peuvent indiquer des problèmes potentiels ou une fraude.
Demandez au vendeur des détails sur l'historique et les conditions d'utilisation du véhicule. Un vendeur authentique sera transparent et prêt à partager ces informations, vous aidant à évaluer si le véhicule répond à vos besoins.
Organisez une visite pour voir et tester le véhicule, en recherchant des signes d'usure ou de dommages. Envisagez une inspection avant l'achat par un mécanicien professionnel pour découvrir tout problème caché et assurer la sécurité et la fiabilité du véhicule.
Avant toute transaction, assurez-vous qu'un accord de vente détaillé est en place, décrivant tous les termes et conditions. Utilisez des méthodes de paiement sécurisées et vérifiez les détails de la transaction pour vous protéger contre la fraude.



























